干燥设备系列 > 流化床干燥系列
产品详情
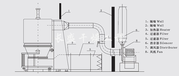
工作原理
空气经加热净化后,由引风机从下部导入,穿过料斗的孔网板。在工作室内,经搅拌和负压作用形成流态化,水份快速蒸发后随着排气带走,物料快速干燥。
性能特点
◎流化床为圆形结构避免死角。
◎料斗设置搅拌,避免潮湿物料团聚及干燥时形成沟流。
◎采用翻倾卸粒,方便迅速彻底,亦可按要求设计自动进出料系统。
◎密封负压操作,气流经过过滤。操作简便,清洗方便。
◎干燥速度快,温度匀称,每批干燥时间一般在20-30分钟,视物料而定。
适应物料
◎机制螺杆挤压颗粒、摇摆颗粒、湿法高速混合制粒颗粒。
◎医药、食品、饲料、化工等领域湿颗粒和粉状物料干燥。
◎大颗粒、小块状、粘性块粒状物料。
◎魔芋等干燥时体积变化的物料。
技术规格
| 项目 | 机型 | ||||||
| 投料(kg) | 60 | 100 | 120 | 150 | 200 | 300 | 500 |
| 风机功率(kw) | 7.5 | 11 | 15 | 18.5 | 22 | 30 | 45 |
| 搅拌功率(kw) | 0.55 | 1.1 | 1.1 | 1.1 | 1.1 | 1.5 | 2.2 |
| 搅拌转速(rpm) | 8~11 | ||||||
| 蒸汽耗量(kg/h) | 141 | 170 | 170 | 240 | 282 | 366 | 451 |
| 操作时间(min) | 15-30(根据物料特性修定) | ||||||
| 主机高度 | 2700 | 2900 | 2900 | 2900 | 2900 | 3300 | 3500 |
上一条:XF系列卧式沸腾干燥机
下一条:LZG系列螺旋振动干燥机
Copyright © 2018 常州市长盛干燥工程有限公司
技术支持:常州市智立方网络科技有限公司
技术支持:常州市智立方网络科技有限公司








